Belgique
rue Saint-Jean 31
B-6700 Arlon
+32 63 444 333
info@immojidee.com
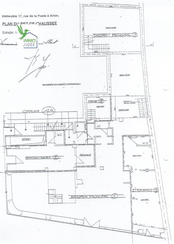
Grande surface commerciale à louer en plein centre ville
Bien situé, en face d'une école, à 100m de la poste et sur une des entrées du piétonnier commercial, cet emplacement dispose d'une très grand vitrine lumineuse.
Le magasin a un espace dédié à la vente d'environ 150m² et dispose d'environ 70m² de stockage.
Le local est disponible au 01/01/2026 et sera régit par un bail commercial.
Actuellement le magasin est dédié au prêt à porter.
Loyer 2.200,00€/mois TVAC
Charges d'immeuble: 0,00€
Garantie locative : 3 mois
Bail : 3-6-9 commercial ou bail d'1 an commercial (courte durée).
